
Product features
AC variable frequency and DC voltage regulation control
For electronics and variable-frequency, special interface is used for connecting with elevator system.
Operating voltage of electronic mode: AC 80V
Operating voltage of variable frequency mode: AC 220V
Car door lock function
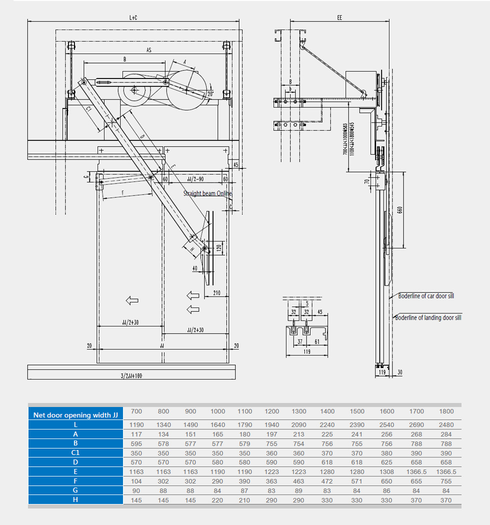
Directly mounted on the straight beam of car
The door shown in the figure is left opening and the right opening is manufactured symmetrically.
“C” is the distance between inside of straight beam and border-line for door opening
Product Description
